TEATRO AUDITORIO CATARROJA

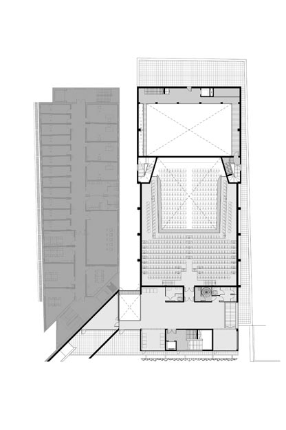
Se trata de un Proyecto conjunto de Teatro-Auditorio y Conservatorio en un solar en esquina y con fachada principal a una Avenida importante de la población. Era primordial que el Teatro adquiriera el protagonismo, por lo que ocupa la totalidad de la fachada a la Avenida, solucionando el encuentro con el Conservatorio con un plano bisectriz del ángulo de esquina.
Para evitar problemas de interacción acústica entre ambos edificios, interiormente se situó un patio-calle entre ambos, enfrentado al acceso y ligado a la cafetería que favorece la permeabilidad del vestíbulo y permite disfrutar de un espacio privado abierto al exterior
El elemento “telón” de fachada minimiza el exceso de soleamiento en la orientación oeste e imprime carácter e identidad al Teatro. Recordando el uso de elementos reclamo en los antiguos comerciales cuando una gran mayoría de sus clientes no sabían leer. Un gran zapato colgado, por ejemplo, complementaba e ilustraba la palabra “Zapatería”.

 
UBICACIÓN
CATARROJA (VALENCIA)
PROMOTOR
EXMO. AYUNTAMIENTO DE CATARROJA
AUTORES
CARLOS MONTESINOS, LUÍS CARRATALÁ
PROYECTO
2002
FIN DE OBRA
2007