TEATRO TALIA

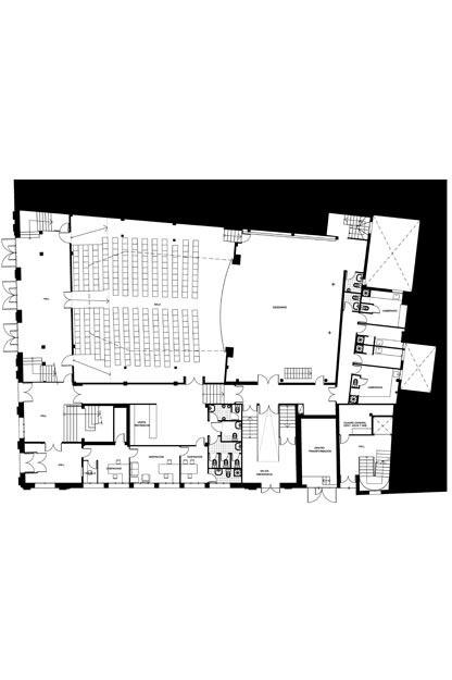
La Casa de los Obreros San Vicente Ferrer, obra del arquitecto Javier Goerlich y situada en la calle Caballeros de Valencia, en pleno Centro Histórico, contaba con un Salón de Actos con acceso desde el vestíbulo del propio edificio. Afortunadamente un pasillo a modo de distribuidor daba a la calle. La reforma consistió básicamente en la ampliación de dicho espacio para independizar la entrada de público, la rehabilitación estructural-funcional y la nueva obra de la caja escénica, adosando un nuevo edificio tras la demolición de otro existente y en muy mal estado que albergaba camerinos y almacenes.

 
UBICACIÓN
VALENCIA
PROMOTOR
CASA DE LOS OBREROS SAN VICENTE FERRER
AUTORES
CARLOS MONTESINOS, VICTORIA MARTÍ
PROYECTO
1995
FIN DE OBRA
1998