TEATRO CENTRO CULTURAL XIRIVELLA

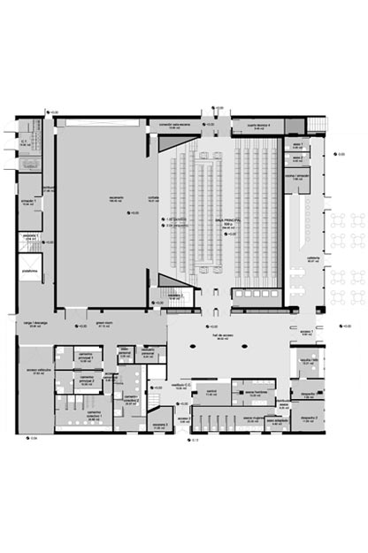
El Centro Cultural y Teatro de Xirivella es un edificio exento en el ángulo de una gran plaza. Esta disposición exige un tratamiento diferenciado para los distintos puntos de vista. Volumetría y grandes huecos en la visión lejana, fachadas compuestas en la disposición de calle.
Dos cuerpos adosados que reflejan el carácter de cada unos de ellos. Uno irregular y singular para el Teatro y un paralelepípedo peraltado en el caso del Centro Cultural. El vestíbulo principal conecta las funciones.
El acceso principal y los servicios públicos se abren a la plaza, el resto lo hacen a las calles laterales.

 
UBICACIÓN
XIRIVELLA (VALENCIA)
PROMOTOR
EXMO. AYUNTAMIENTO DE XIRIVELLA
PROYECTO
2009